地 址: 河南省鞏義市西村工業區
聯係人: 龐經理
手 機: 15617617287
15038001853
E_mail: gyltgd@126.com
http://www.gyltgdc.com/

傳力接頭又叫伸縮接頭、伸縮節、草莓视频APP入口、伸縮器。是泵、閥門等設備與管道連接的新產品,通過全螺栓把它們連接起來,使其成為一個整體,並有一定的位移量,這樣就可以在安裝維修時,根據現場安裝尺寸進行調整,在工作時,可以把軸向推力傳還至整個管道。這樣不僅提高工作效率,而切對泵、閥們等設備起到一定保護作用。
傳力接頭是泵、閥門,管道等設備與管道連接的新產品,通過全螺栓把它們連接起來,使其成為整體,並有一定的位移量,方便安裝。可承受管線的軸向壓力。這樣就可以在安裝維修時,根據現場安裝尺寸進行調整,在工作時,不僅提高工作效率,而且對泵、閥們等管道設備起到一定保護作用。
傳力接頭適用於輸送海水、淡水、冷熱水、飲用水、生活汙水、原油、燃油、潤滑油、成品油、空氣、煤氣、溫度不高於250度的蒸汽和顆粒粉狀等介質。

CC2F型可拆式雙法蘭鬆套傳力接頭傳力接頭適用範圍:
CC2F型可拆式雙法蘭鬆套傳力接頭適用於輸送海水、淡水、冷熱水、飲用水、生活汙水、原油、燃油、潤滑油、成品油、空氣、煤氣、溫度不高於250度的蒸汽和顆粒粉狀等介質。
CC2F型可拆式雙法蘭鬆套傳力接頭性能特點:
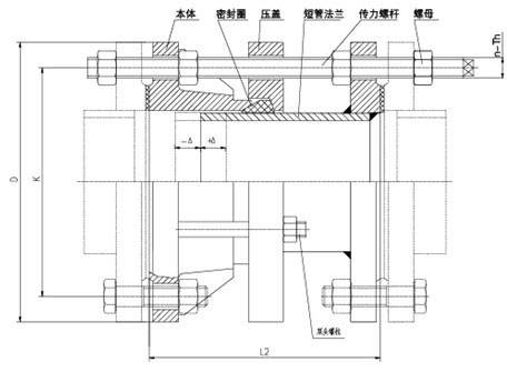
可拆式雙法蘭鬆套傳力接頭是在法蘭鬆套補償接頭的基礎上增設法蘭短管及傳力螺杆而成,次類型的補償接頭與鬆套補償接頭和鬆套限位補償接頭不同的是它的補償量是指在安裝及拆卸過程中的調節量,一旦將所有的螺母擰緊,它是剛性連接的,可以傳遞軸心力 ,從而保護閥門、泵等設備。
CC2F型可拆式雙法蘭鬆套傳力接頭傳力接頭安裝時的注意事項:
CC2F型可拆式雙法蘭傳力接頭適用於兩邊均與法蘭連接的管路中,安裝時調節產品兩端與法蘭的安裝長度,對角依次均勻擰緊壓蓋螺栓,使其成為一個整體,並有一定的位移量,方便安裝維修時,根據現場尺寸進行調整。在工作時可以把軸向推力傳遞至正個管道。
可拆式雙法蘭鬆套傳力接頭的材質:主要有Q235碳鋼、不鏽鋼、鑄鋼、球墨鑄鐵等。不同的用途選用不同的材質和型號。
技術參數:
|
公稱通徑DN |
管子外徑 Dw |
外形尺寸 |
法 蘭 連 接 尺 寸 |
||||||||
|
L |
△L |
0.6MPa |
1.0MPa |
||||||||
|
D |
D1 |
n-Th |
b |
D |
D1 |
n-Th |
b |
||||
|
65 |
76 |
200 | 40 | 160 | 130 | 4-M12 | 16 | 185 | 145 | 4-M16 | 20 |
|
80 |
89 | 190 | 150 | 4-M16 | 18 | 200 | 160 | 8-M16 | 22 | ||
|
100 |
114 |
210 |
170 |
220 |
180 |
24 |
|||||
|
125 |
140 |
240 |
200 |
8-M16 |
20 |
250 |
210 |
26 |
|||
|
150 |
168 |
265 |
225 |
285 |
240 |
8-M20 |
|||||
|
200 |
219 |
320 |
280 |
22 |
340 |
295 |
28 |
||||
|
250 |
273 |
375 |
335 |
12-M16 |
24 |
395 |
350 |
12-M20 |
|||
|
300 |
325 |
220 |
50 |
440 |
395 |
12-M20 |
24 |
445 |
400 |
12-M20 |
28 |
|
350 |
377 | 490 | 445 | 26 | 505 | 460 | 16-M20 | 30 | |||
|
400 |
426 |
540 |
495 |
16-M20 |
28 |
565 |
515 |
16-M24 |
32 |
||
|
450 |
480 |
595 |
550 |
615 |
565 |
20-M24 |
32 |
||||
|
500 |
530 |
645 |
600 |
20-M20 |
30 |
670 |
620 |
34 |
|||
|
600 |
630 |
240 |
755 |
705 |
20-M24 |
780 |
725 |
20-M27 |
36 |
||
|
700 |
720 |
860 |
810 |
24-M24 |
32 |
895 |
840 |
24-M27 |
40 |
||
|
800 |
820 |
350 |
60 |
975 |
920 |
24-M27 |
34 |
1015 |
950 |
24-M30 |
44 |
|
900 |
920 |
1075 |
1020 |
24-M27 |
36 |
1115 |
1050 |
28-M30 |
46 |
||
|
1000 |
1020 |
1175 |
1120 |
28-M27 |
1230 |
1160 |
28-M33 |
50 |
|||
|
1200 |
1220 |
370 |
1405 |
1340 |
32-M30 |
40 |
1455 |
1380 |
32-M36 |
56 |
|
|
1400 |
1420 |
1630 |
1560 |
36-M33 |
44 |
1675 |
1590 |
36-M39 |
62 |
||
|
1600 |
1620 |
380 |
1830 |
1760 |
40-M33 |
48 |
1915 |
1820 |
40-M4 |
68 |
|
|
1800 |
1820 |
2045 |
1970 |
44-M36 |
50 |
2115 |
2020 |
44-M45 |
70 |
||
|
2000 |
2020 |
400 |
2265 |
2180 |
48-M39 |
54 |
2325 |
2230 |
48-M45 |
74 |
|
|
2200 |
2220 |
2475 |
2390 |
52-M39 |
60 |
2550 |
2440 |
52-M52 |
80 |
||
|
2400 |
2420 |
2685 |
2600 |
56-M39 |
62 |
2760 |
2650 |
56-M52 |
82 |
||
|
2600 |
2620 |
450 |
80 |
2905 |
2810 |
60-M45 |
64 |
2960 |
2850 |
60-M52 |
88 |
|
2800 |
2820 |
3115 |
3020 |
64-M45 |
68 |
3480 |
3070 |
64-M52 |
94 |
||
|
3000 |
3020 |
3315 |
3220 |
68-M45 |
70 |
3405 |
3290 |
68-M56 |
100 |
||
|
3200 |
3220 |
3525 |
3430 |
72-M45 |
76 |
|
|||||